Casa indipendente in vendita

Bagnoregio, Piazza Salvo d'Acquisto - Castel Cellesi
€ 79.000
8 locali 8 locali
150 Mq 150 Mq
2 bagni 2 bagni

Casa indipendente in vendita

Bagnoregio, Piazza Salvo d'Acquisto - Castel Cellesi

Descrizione annuncio

BAGNOREGIO Nel suggestivo borgo di Castel Cellesi, a pochi minuti dalla celebre Civita di Bagnoregio, proponiamo in vendita un immobile dal fascino autentico, inserito in una piccola e graziosa piazza con un’ottima esposizione al sole.

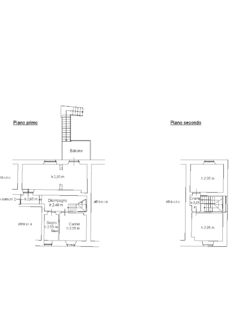
L’abitazione si sviluppa su due livelli, al piano primo e secondo, e accoglie con ambienti caratteristici: ingresso, soggiorno con camino, cucina abitabile anch’essa dotata di camino, due camere da letto e un bagno con doccia. Completa il piano un delizioso terrazzino di circa 10 Mq.
Al piano terra troviamo invece una taverna composta da due ambienti, impreziosita da una cucina in muratura e camino, con accesso diretto all’area esterna di proprietà.
L’immobile si presenta in ottime condizioni, subito abitabile, ed è inserito in un contesto curato di altre abitazioni tipiche, tutte finemente ristrutturate, che valorizzano ulteriormente l’atmosfera del borgo.

Grazie alla posizione, al fascino e alla versatilità degli spazi, questa proprietà rappresenta una soluzione ideale sia come casa vacanze, sia come struttura ricettiva o investimento da mettere a reddito.
Facciata e tetto sono stati recentemente ristrutturati, garantendo ulteriore valore e tranquillità nel tempo.

L'agenzia lavora nel rispetto delle normative che regolano l'intermediazione immobiliare con incarichi di vendita in esclusiva da oltre 20 anni, per tutelare con trasparenza acquirente e venditore nel portare a termine la compravendita.

Se oltre all' acquisto, desideri anche vendere, richiedi una consulenza dedicata e gratuita al numero 0761/826970. ci piace seguire il cliente passo passo durante la compravendita, così da non doversi preoccupare della parte burocratica e di tutti i controlli come visure ipotecarie e catastali; tra i nostri molteplici servizi possiamo offrire consulenze gratuite con il nostro partner finanziario Kiron (Gruppo Tecnocasa), che vi fornirà gratuitamente notizie sugli attuali e più vantaggiosi tassi di mutuo e assicurazioni per la vostra casa. potete inoltre mettere il like sulla nostra pagina Facebook ' Tecnocasa Montefiascone ' che, aggiornata giornalmente, vi dà la possibilità di vedere i nostri immobili, interessanti informazioni sull'andamento del mercato e su tutto quello che gira attorno al mondo delle compravendite immobiliari. Ogni agenzia ha un proprio titolare ed è autonoma.

Mostra tutto

Caratteristiche

Rif.:
61193819
Piano:
Su più livelli di 3
Totale piani:
3
Terrazzi:
1
Camere da letto:
3
Arredamento:
Parziale
Mostra tutto
Prezzo Prezzo
€ 79.000
Rata mutuo Rata mutuo
€ 375 / mese
Proponi il tuo prezzoProponi il tuo prezzo

Classe Energetica

G
G
G
G
G
G
G
G
G
EP globale non rinnovabile:
219.39 kW h/m² anno
EP globale rinnovabile:
219.39 kW h/m² anno
EP invernale del fabbricato:
EP estiva del fabbricato:
Anno di costruzione:
1950
Riscaldamento:
Autonomo
Tipo impianto:
A radiatori
Tipo alimentazione:
Metano

Ti interessa visionare l'immobile?

Fissa un appuntamento  Fissa un appuntamento

Richiedi informazioni

Clicca su Leggi per aprire l'informativa
* Questi campi sono obbligatori

Calcola il tuo mutuo

Semplice e senza impegno
Anticipo

( % )
Mutuo

( % )

pochi semplici passi

inserisci i tuoi dati
Questionario completato
Grazie per aver richiesto un appuntamento senza impegno con un nostro Consulente del Credito e Assicurativo.

Hai inserito correttamente tutti i dati necessari e a breve riceverai una e-mail con un link da convalidare per inviare i tuoi dati.
Affiliato
Studio Falisco Srl
Via Oreste Borghesi, 79 01027 Montefiascone (VT)

Il nostro staff


  • Roberto Chiodo
    Affiliato

  • Giulia Onofri
    Coordinatrice
Via Oreste Borghesi, 79 01027 Montefiascone (VT)
Zona: Montefiascone- Marta -Lago Di Bolsena
Mostra su mappa
Affiliato
Studio Falisco Srl
Via Oreste Borghesi, 79 01027 Montefiascone (VT)

2026 Tecnocasa Franchising S.p.A. - P. IVA 08365160152 - Via Monte Bianco 60/A 20089 Rozzano (MI). Ogni agenzia ha un proprio titolare ed è autonoma. Privacy policy | Policy utilizzo | Cookie policy