Porzione di bifamiliare in vendita

Capodimonte, Strada Montecchio Scomparti
€ 295.000
Prezzo aggiornato
4 locali 4 locali
180 Mq 180 Mq
2 bagni 2 bagni

Porzione di bifamiliare in vendita

Capodimonte, Strada Montecchio Scomparti

Descrizione annuncio

CAPODIMONTE sulle rive del Lago di Bolsena, nella zona residenziale, in Strada Montecchio Scomparti , proponiamo in vendita porzione di Villa Bifamiliare di nuova costruzione con giardino.

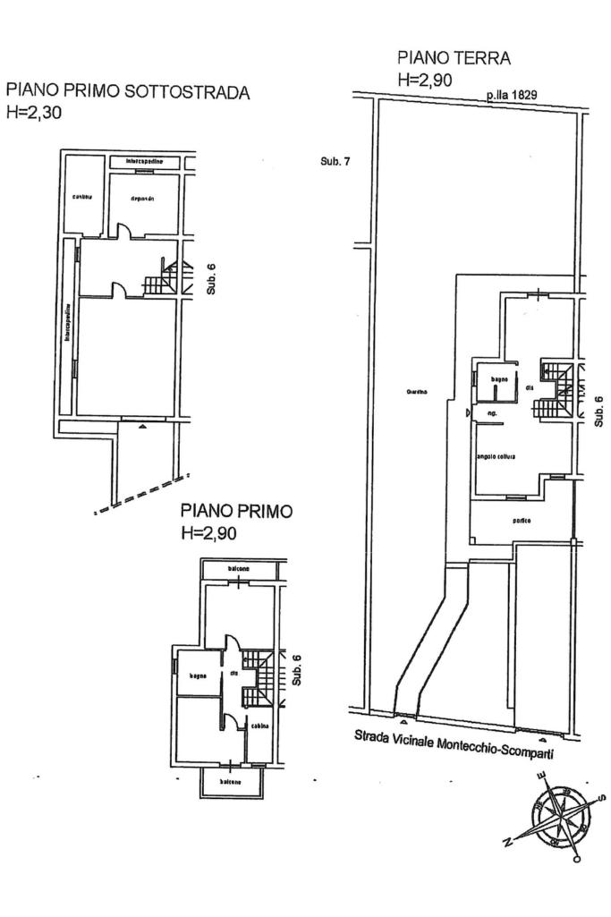
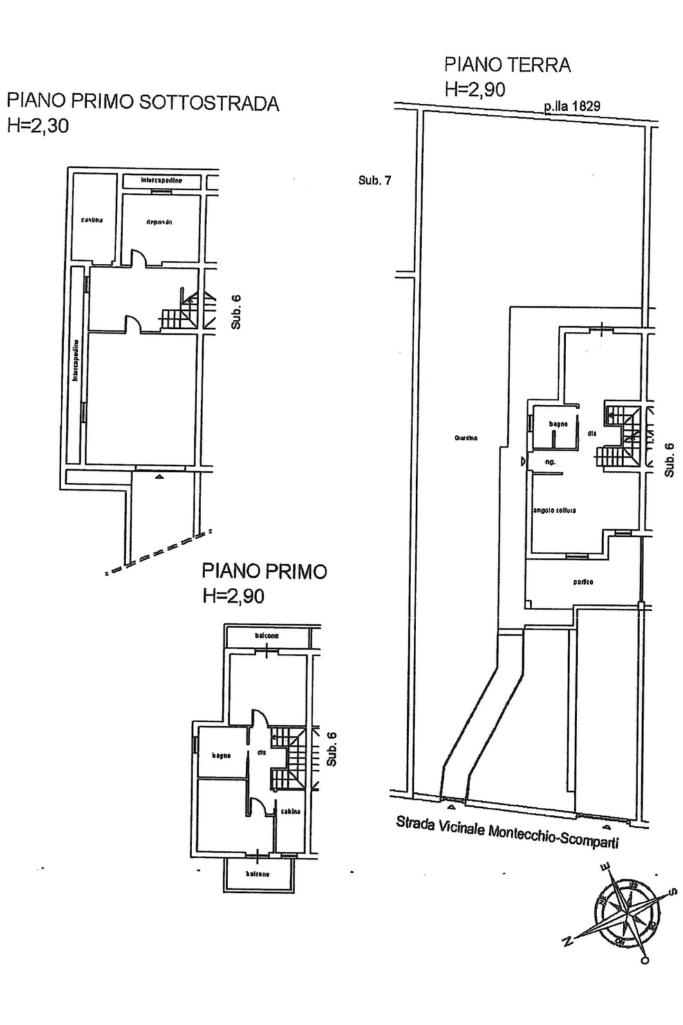
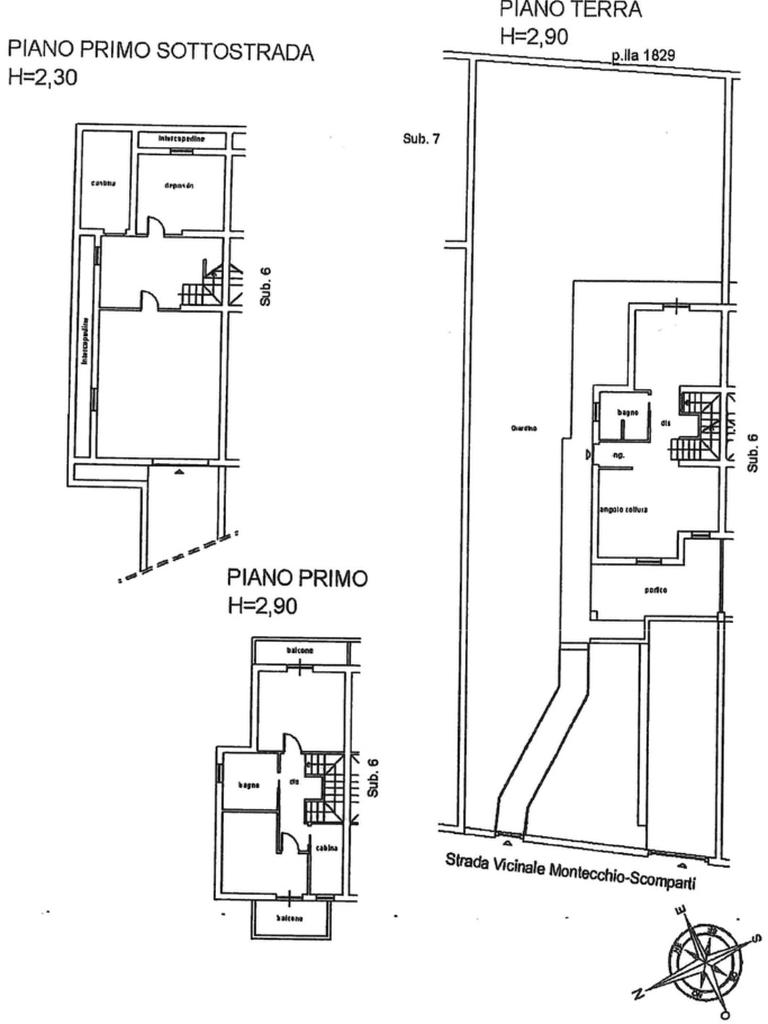
La villa , di complessivi 180 mq, è così composta:

Al piano terra soggiorno con angolo cottura, salotto , ripostiglio e bagno finestrato con doccia .

Al piano primo due camere matrimoniali , una cabina armadio , disimpegno , ripostiglio e bagno finestrato con doccia .

Al piano seminterrato garage doppio , taverna, locale tecnico, lavanderia e ripostiglio .

Completano la proprietà balconi con parziale vista lago , portico e curato giardino angolare di 250 mq con impianto di irrigazione .

Porzione di villa ultimata nell'anno 2021 , con ottima efficienza energetica grazie al pannello solare per la produzione di acqua calda sanitaria, al riscaldamento a pavimento , alle caldaie a pellet ed a GPL integrate , ai climatizzatori ed agli infissi in Pvc con triplo taglio termico con zanzariere .

Ottime finiture generali , immobile dotato di impianto di allarme.

L'agenzia lavora nel rispetto delle normative che regolano l'intermediazione immobiliare con incarichi di vendita in esclusiva da oltre 20 anni, per tutelare con trasparenza acquirente e venditore nel portare a termine la compravendita.

Se oltre all' acquisto, desideri anche vendere, richiedi una consulenza dedicata e gratuita al numero 0761/826970. ci piace seguire il cliente passo passo durante la compravendita, così da non doversi preoccupare della parte burocratica e di tutti i controlli come visure ipotecarie e catastali; tra i nostri molteplici servizi possiamo offrire consulenze gratuite con il nostro partner finanziario Kiron (Gruppo Tecnocasa), che vi fornirà gratuitamente notizie sugli attuali e più vantaggiosi tassi di mutuo e assicurazioni per la vostra casa. potete inoltre mettere il like sulla nostra pagina Facebook ' Tecnocasa Montefiascone ' che, aggiornata giornalmente, vi dà la possibilità di vedere i nostri immobili, interessanti informazioni sull'andamento del mercato e su tutto quello che gira attorno al mondo delle compravendite immobiliari. Ogni agenzia ha un proprio titolare ed è autonoma.

Mostra tutto

Nelle vicinanze

Trasporto pubblico Trasporto pubblico
Trasporto pubblico
1,1 Km
Scuole Scuole
Scuola Primaria
630 m
Supermercati Supermercati
Mercatissimo
350 m
Bar Bar
Bar del turista
2,4 Km
Ristoranti Ristoranti
Trattoria de la Jolanda
2,3 Km
da Otello
2,5 Km
Mostra tutto

Caratteristiche

Rif.:
61133163
Piano:
Su più livelli di 3
Totale piani:
3
Box:
1
Posti auto:
3
Balconi:
2
Mostra tutto
Prezzo Prezzo
€ 295.000
Rata mutuo Rata mutuo
€ 1.378 / mese
Proponi il tuo prezzoProponi il tuo prezzo

Altre caratteristiche

Classe Energetica

C
C
C
C
C
C
C
C
C
EP invernale del fabbricato:
EP estiva del fabbricato:
Anno di costruzione:
2021
Riscaldamento:
Autonomo
Tipo impianto:
A pavimento
Tipo alimentazione:
GPL

Prezzo ridotto di €1 (8%%)

Ti interessa visionare l'immobile?

Fissa un appuntamento  Fissa un appuntamento

Richiedi informazioni

Clicca su Leggi per aprire l'informativa
* Questi campi sono obbligatori

Calcola il tuo mutuo

Semplice e senza impegno
Anticipo

( % )
Mutuo

( % )

pochi semplici passi

inserisci i tuoi dati
Questionario completato
Grazie per aver richiesto un appuntamento senza impegno con un nostro Consulente del Credito e Assicurativo.

Hai inserito correttamente tutti i dati necessari e a breve riceverai una e-mail con un link da convalidare per inviare i tuoi dati.
Affiliato
Studio Falisco Srl
Via Oreste Borghesi, 79 01027 Montefiascone (VT)

Il nostro staff


  • Roberto Chiodo
    Affiliato

  • Giulia Onofri
    Coordinatrice
Via Oreste Borghesi, 79 01027 Montefiascone (VT)
Zona: Montefiascone- Marta -Lago Di Bolsena
Mostra su mappa
Affiliato
Studio Falisco Srl
Via Oreste Borghesi, 79 01027 Montefiascone (VT)

2026 Tecnocasa Franchising S.p.A. - P. IVA 08365160152 - Via Monte Bianco 60/A 20089 Rozzano (MI). Ogni agenzia ha un proprio titolare ed è autonoma. Privacy policy | Policy utilizzo | Cookie policy