Attico in vendita

Montefiascone, Via Verentana
€ 190.000
5 locali 5 locali
150 Mq 150 Mq
1 bagno 1 bagno

Attico in vendita

Montefiascone, Via Verentana

Descrizione annuncio

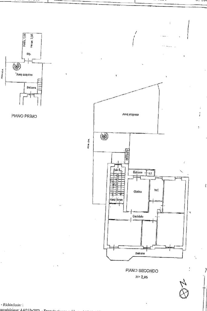
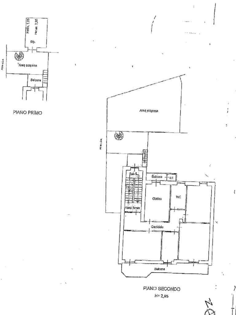
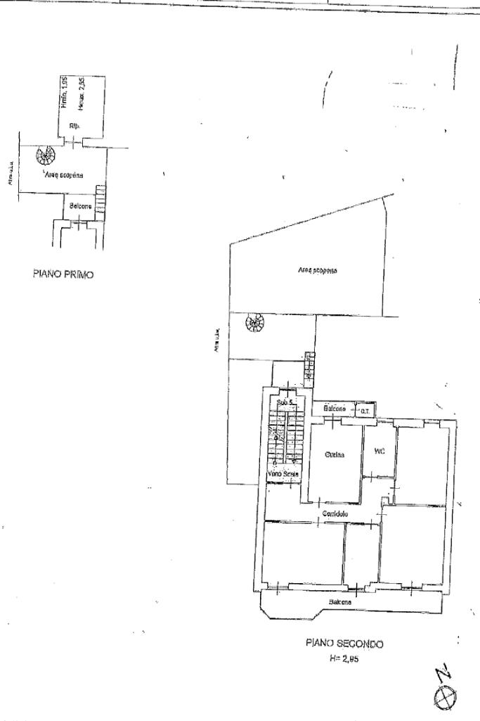
MONTEFIASCONE in posizione esclusiva, proponiamo in vendita un appartamento luminoso e panoramico, situato al secondo e ultimo piano di una palazzina.

L'immobile gode di una vista completa sul Lago di Bolsena, che si può ammirare dal soggiorno, dal balcone principale e dalle camere. È composto da:
- Ingresso
- Ampio soggiorno con balcone panoramico vista lago.
- Cucina abitabile con secondo balcone e affaccio sul giardino retrostante.
- Tre camere da letto.
- Bagno.
- Spazioso garage di 90 Mq, con altezza di circa 4 metri (ideale anche come magazzino o spazio multifunzionale).

L’appartamento, pur presentando finiture dell’epoca, è in buone condizioni e offre un grande potenziale di personalizzazione.

Perfetto per chi cerca una casa con vista lago, comoda ai servizi e con spazi generosi.

L'agenzia lavora nel rispetto delle normative che regolano l'intermediazione immobiliare con incarichi di vendita in esclusiva da oltre 20 anni, per tutelare con trasparenza acquirente e venditore nel portare a termine la compravendita.

Se oltre all' acquisto, desideri anche vendere, richiedi una consulenza dedicata e gratuita al numero 0761/826970. ci piace seguire il cliente passo passo durante la compravendita, così da non doversi preoccupare della parte burocratica e di tutti i controlli come visure ipotecarie e catastali; tra i nostri molteplici servizi possiamo offrire consulenze gratuite con il nostro partner finanziario Kiron (Gruppo Tecnocasa), che vi fornirà gratuitamente notizie sugli attuali e più vantaggiosi tassi di mutuo e assicurazioni per la vostra casa. potete inoltre mettere il like sulla nostra pagina Facebook ' Tecnocasa Montefiascone ' che, aggiornata giornalmente, vi dà la possibilità di vedere i nostri immobili, interessanti informazioni sull'andamento del mercato e su tutto quello che gira attorno al mondo delle compravendite immobiliari. Ogni agenzia ha un proprio titolare ed è autonoma.

Mostra tutto

Nelle vicinanze

Trasporto pubblico Trasporto pubblico
Montefiascone
Montefiascone
2,5 Km
Trasporto pubblico
100 m
Scuole Scuole
Scuola Elementare
40 m
I.TC.G. C.A. Dalla Chiesa
730 m
Istituto Progetto Uomo
1,1 Km
Farmacia Farmacia
FARMACIA F. & A. BRAGUTI
10 m
Ospedali Ospedali
Ospedale Civile di Montefiascone
410 m
Supermercati Supermercati
Conad
330 m
Coop
950 m
PENNY Market
1,1 Km
Penny Market
1,1 Km
Todis - Supermercato
1,3 Km
Negozi Negozi
Panificio Mari
50 m
Brachino Renzo Panificio
140 m
GranRisparmio super
200 m
Alimentari Pezzato
360 m
La Bottega del Pane
940 m
Bar Bar
Billy Bar
50 m
Il Caffe
280 m
Bar Pasticceria Dolceloc
960 m
Ristoranti Ristoranti
Bar Pizzeria Roma
40 m
Il Borgo Antico
60 m
Ristorante Dante
280 m
La piccola hostaria
310 m
Mamma Pappa osteria e foccacceria
350 m
Mostra tutto

Caratteristiche

Rif.:
61105323
Piano:
Ultimo di 3
Totale piani:
3
Box:
1
Posti auto:
1
Balconi:
2
Mostra tutto
Prezzo Prezzo
€ 190.000
Rata mutuo Rata mutuo
€ 903 / mese
Spese annue Spese annue
€ 0
Proponi il tuo prezzoProponi il tuo prezzo

Classe Energetica

G
G
G
G
G
G
G
G
G
EP globale non rinnovabile:
178.35 kW h/m² anno
EP globale rinnovabile:
178.35 kW h/m² anno
EP invernale del fabbricato:
EP estiva del fabbricato:
Anno di costruzione:
1960
Riscaldamento:
Autonomo
Tipo impianto:
A radiatori
Tipo alimentazione:
Metano

Ti interessa visionare l'immobile?

Fissa un appuntamento  Fissa un appuntamento

Richiedi informazioni

Clicca su Leggi per aprire l'informativa
* Questi campi sono obbligatori

Calcola il tuo mutuo

Semplice e senza impegno
Anticipo

( % )
Mutuo

( % )

pochi semplici passi

inserisci i tuoi dati
Questionario completato
Grazie per aver richiesto un appuntamento senza impegno con un nostro Consulente del Credito e Assicurativo.

Hai inserito correttamente tutti i dati necessari e a breve riceverai una e-mail con un link da convalidare per inviare i tuoi dati.
Affiliato
Studio Falisco Srl
Via Oreste Borghesi, 79 01027 Montefiascone (VT)

Il nostro staff


  • Roberto Chiodo
    Affiliato

  • Giulia Onofri
    Coordinatrice
Via Oreste Borghesi, 79 01027 Montefiascone (VT)
Zona: Montefiascone- Marta -Lago Di Bolsena
Mostra su mappa
Affiliato
Studio Falisco Srl
Via Oreste Borghesi, 79 01027 Montefiascone (VT)

2026 Tecnocasa Franchising S.p.A. - P. IVA 08365160152 - Via Monte Bianco 60/A 20089 Rozzano (MI). Ogni agenzia ha un proprio titolare ed è autonoma. Privacy policy | Policy utilizzo | Cookie policy