Villa singola in vendita

Montefiascone, Via F. Iacopoini
€ 179.000
Prezzo aggiornato
5 locali 5 locali
170 Mq 170 Mq
2 bagni 2 bagni

Villa singola in vendita

Montefiascone, Via F. Iacopoini

Descrizione annuncio

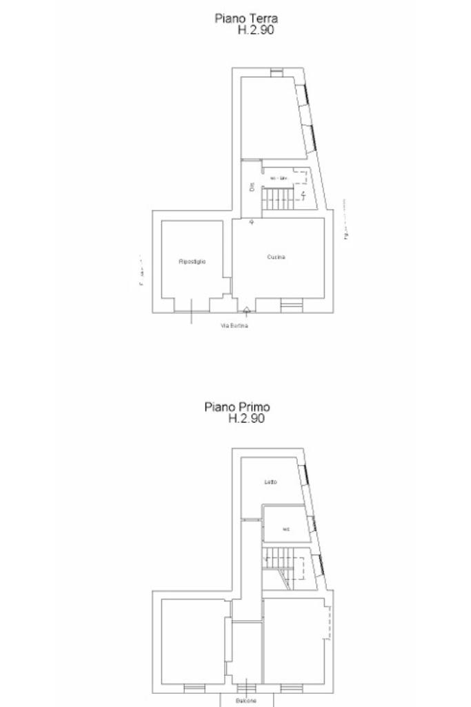
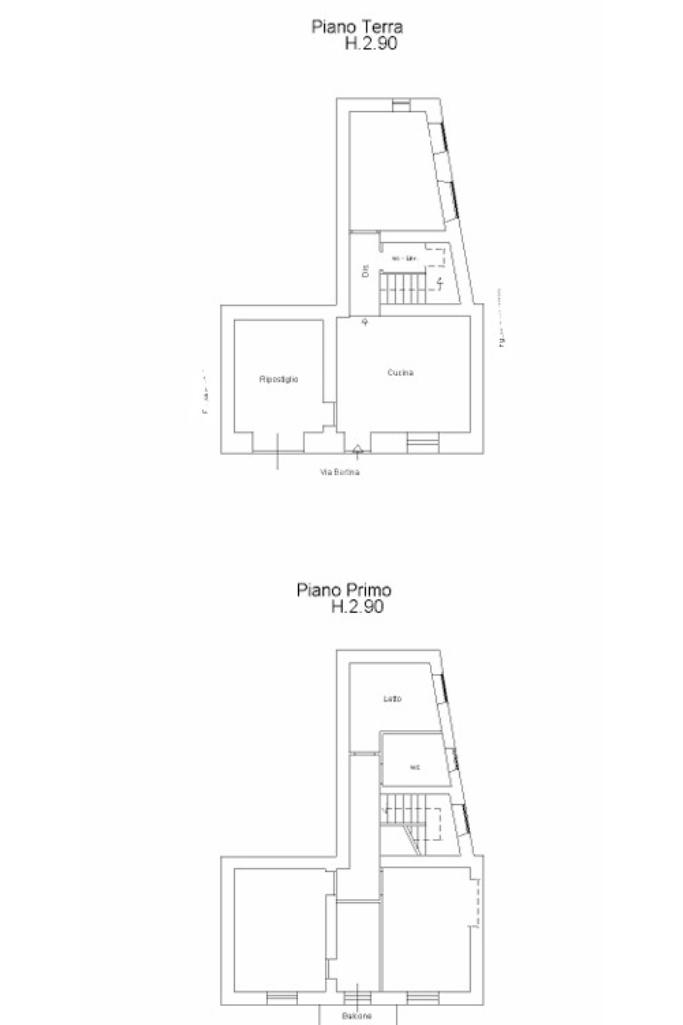
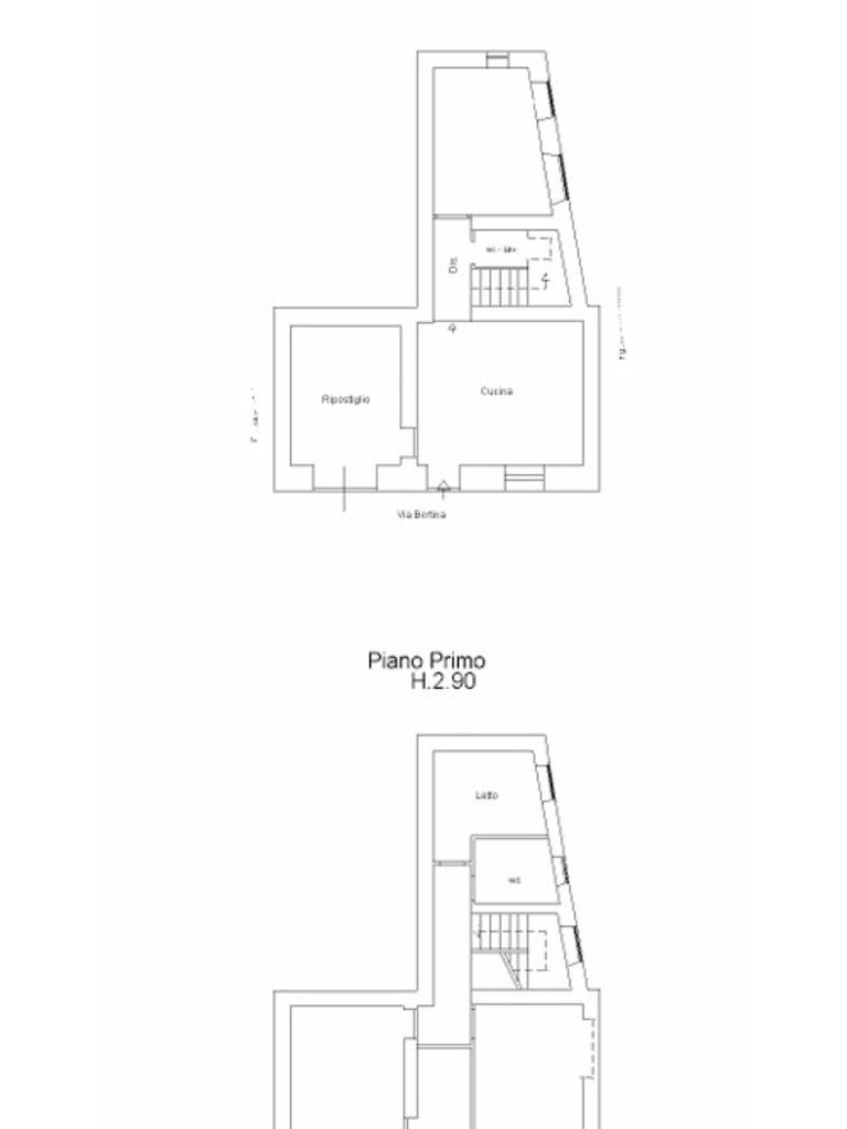
MONTEFIASCONE in posizione centralissima, comoda a tutti i servizi raggiungibili a piedi, proponiamo in vendita villetta singola completamente ristrutturata nel 2024, disposta su due livelli.

Al piano terra si trovano luminoso soggiorno, cucina abitabile e bagno di servizio.
Al piano primo il disimpegno conduce alla zona notte, composta da tre camere da letto, di cui una con una stanza interna ideale come cabina armadio o studio e bagno con box doccia.

La proprietà è completata da un garage.

L'agenzia lavora nel rispetto delle normative che regolano l'intermediazione immobiliare con incarichi di vendita in esclusiva da oltre 20 anni, per tutelare con trasparenza acquirente e venditore nel portare a termine la compravendita.

Se oltre all' acquisto, desideri anche vendere, richiedi una consulenza dedicata e gratuita al numero 0761/826970. ci piace seguire il cliente passo passo durante la compravendita, così da non doversi preoccupare della parte burocratica e di tutti i controlli come visure ipotecarie e catastali; tra i nostri molteplici servizi possiamo offrire consulenze gratuite con il nostro partner finanziario Kiron (Gruppo Tecnocasa), che vi fornirà gratuitamente notizie sugli attuali e più vantaggiosi tassi di mutuo e assicurazioni per la vostra casa. potete inoltre mettere il like sulla nostra pagina Facebook ' Tecnocasa Montefiascone ' che, aggiornata giornalmente, vi dà la possibilità di vedere i nostri immobili, interessanti informazioni sull'andamento del mercato e su tutto quello che gira attorno al mondo delle compravendite immobiliari. Ogni agenzia ha un proprio titolare ed è autonoma.

Mostra tutto

Nelle vicinanze

Trasporto pubblico Trasporto pubblico
Montefiascone
Montefiascone
2,9 Km
Trasporto pubblico
300 m
Scuole Scuole
Scuola Elementare
410 m
I.TC.G. C.A. Dalla Chiesa
450 m
Istituto Progetto Uomo
800 m
Farmacia Farmacia
FARMACIA F. & A. BRAGUTI
360 m
Ospedali Ospedali
Ospedale Civile di Montefiascone
650 m
Supermercati Supermercati
Coop
650 m
Conad
690 m
PENNY Market
970 m
Penny Market
970 m
Todis - Supermercato
1,6 Km
Negozi Negozi
Panificio Mari
320 m
GranRisparmio super
390 m
Alimentari Pezzato
420 m
Brachino Renzo Panificio
470 m
La Bottega del Pane
680 m
Bar Bar
Billy Bar
340 m
Il Caffe
460 m
Bar Pasticceria Dolceloc
690 m
Ristoranti Ristoranti
Il Borgo Antico
320 m
Bar Pizzeria Roma
410 m
Ristorante Dante
420 m
La piccola hostaria
480 m
Da Paolo al Miralago
480 m
Mostra tutto

Caratteristiche

Rif.:
61126723
Piano:
Su più livelli di 2
Totale piani:
2
Box:
1
Posti auto:
1
Balconi:
1
Mostra tutto
Prezzo Prezzo
€ 179.000
Rata mutuo Rata mutuo
€ 844 / mese
Spese annue Spese annue
€ 0
Proponi il tuo prezzoProponi il tuo prezzo

Classe Energetica

G
G
G
G
G
G
G
G
G
EP globale non rinnovabile:
178.35 kW h/m² anno
EP globale rinnovabile:
178.35 kW h/m² anno
EP invernale del fabbricato:
EP estiva del fabbricato:
Anno di costruzione:
1950
Riscaldamento:
Autonomo
Tipo impianto:
A radiatori
Tipo alimentazione:
Metano

Prezzo ridotto di €1 (6%%)

Ti interessa visionare l'immobile?

Fissa un appuntamento  Fissa un appuntamento

Richiedi informazioni

Clicca su Leggi per aprire l'informativa
* Questi campi sono obbligatori

Calcola il tuo mutuo

Semplice e senza impegno
Anticipo

( % )
Mutuo

( % )

pochi semplici passi

inserisci i tuoi dati
Questionario completato
Grazie per aver richiesto un appuntamento senza impegno con un nostro Consulente del Credito e Assicurativo.

Hai inserito correttamente tutti i dati necessari e a breve riceverai una e-mail con un link da convalidare per inviare i tuoi dati.
Affiliato
Studio Falisco Srl
Via Oreste Borghesi, 79 01027 Montefiascone (VT)

Il nostro staff


  • Roberto Chiodo
    Affiliato

  • Giulia Onofri
    Coordinatrice
Via Oreste Borghesi, 79 01027 Montefiascone (VT)
Zona: Montefiascone- Marta -Lago Di Bolsena
Mostra su mappa
Affiliato
Studio Falisco Srl
Via Oreste Borghesi, 79 01027 Montefiascone (VT)

2025 Tecnocasa Franchising S.p.A. - P. IVA 08365160152 - Via Monte Bianco 60/A 20089 Rozzano (MI). Ogni agenzia ha un proprio titolare ed è autonoma. Privacy policy | Policy utilizzo | Cookie policy