Porzione di bifamiliare in vendita

Montefiascone, Via Capobianco - Capobianco
€ 280.000
4 locali 4 locali
230 Mq 230 Mq
3 bagni 3 bagni

Porzione di bifamiliare in vendita

Montefiascone, Via Capobianco - Capobianco

Descrizione annuncio

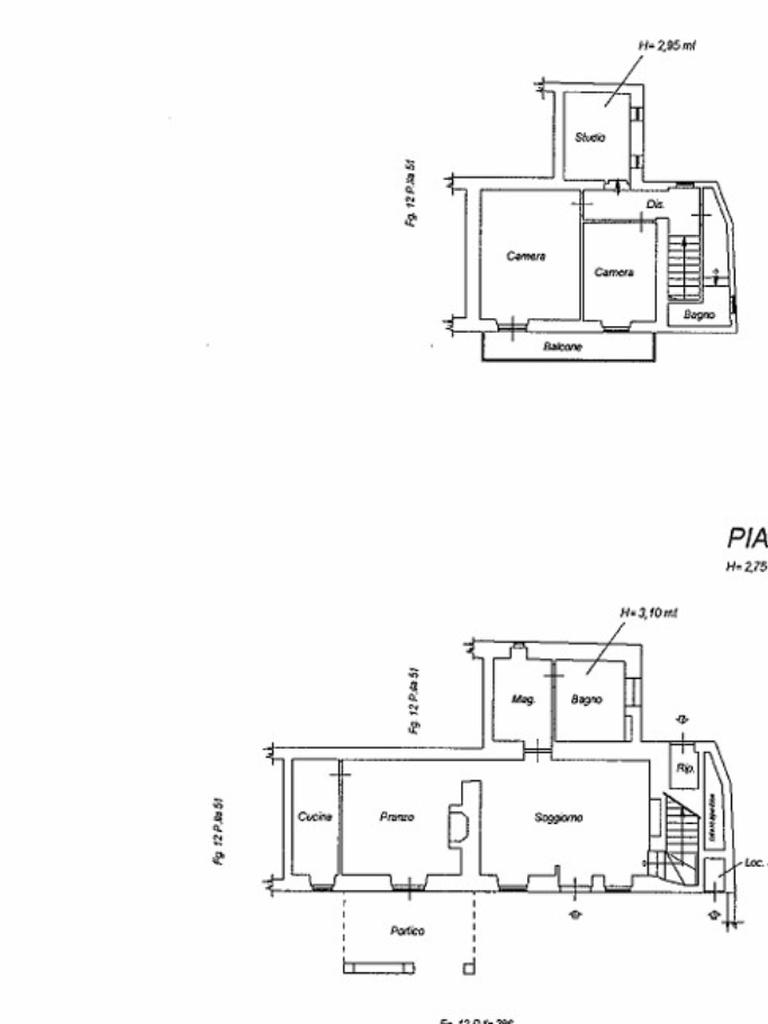
MONTEFIASCONE in zona Capobianco proponiamo in vendita porzione di casale disposta su due livelli, completamente ristrutturata nel 2025.
Al piano terra l’abitazione accoglie con un ampio e luminoso soggiorno, cucina con angolo cottura e camino e bagno finestrato dotato di box doccia.
Il piano primo ospita due camere da letto, una terza stanza attualmente adibita a cabina armadio, bagno con doccia e balcone.

La proprietà è completata da un giardino privato di circa 300 Mq con portico. Presente inoltre una dependance di circa 50 Mq, tutta al piano terra, attrezzata con angolo cottura, bagno e stanza, perfetta come spazio per ospiti o uso indipendente.
Completano l’immobile garage e tettoia.

L'agenzia lavora nel rispetto delle normative che regolano l'intermediazione immobiliare con incarichi di vendita in esclusiva da oltre 20 anni, per tutelare con trasparenza acquirente e venditore nel portare a termine la compravendita.

Se oltre all' acquisto, desideri anche vendere, richiedi una consulenza dedicata e gratuita al numero 0761/826970. ci piace seguire il cliente passo passo durante la compravendita, così da non doversi preoccupare della parte burocratica e di tutti i controlli come visure ipotecarie e catastali; tra i nostri molteplici servizi possiamo offrire consulenze gratuite con il nostro partner finanziario Kiron (Gruppo Tecnocasa), che vi fornirà gratuitamente notizie sugli attuali e più vantaggiosi tassi di mutuo e assicurazioni per la vostra casa. potete inoltre mettere il like sulla nostra pagina Facebook ' Tecnocasa Montefiascone ' che, aggiornata giornalmente, vi dà la possibilità di vedere i nostri immobili, interessanti informazioni sull'andamento del mercato e su tutto quello che gira attorno al mondo delle compravendite immobiliari. Ogni agenzia ha un proprio titolare ed è autonoma.

Mostra tutto

Nelle vicinanze

Trasporto pubblico Trasporto pubblico
Trasporto pubblico
2,4 Km
Scuole Scuole
Istituto Progetto Uomo
1,7 Km
I.TC.G. C.A. Dalla Chiesa
2,0 Km
Scuola Elementare
2,4 Km
Farmacia Farmacia
FARMACIA F. & A. BRAGUTI
2,4 Km
Ospedali Ospedali
Ospedale Civile di Montefiascone
2,9 Km
Supermercati Supermercati
PENNY Market
1,4 Km
Penny Market
1,4 Km
Coop
1,8 Km
Conad
2,5 Km
Negozi Negozi
La Bottega del Pane
1,8 Km
Alimentari Pezzato
2,1 Km
Brachino Renzo Panificio
2,4 Km
Panificio Mari
2,4 Km
GranRisparmio super
2,6 Km
Bar Bar
Bar Pasticceria Dolceloc
1,8 Km
Billy Bar
2,5 Km
Il Caffe
2,7 Km
Ristoranti Ristoranti
Ristorante Da Rita
1,7 Km
Antica Grotta
1,8 Km
Albergo Ristorante La Rondinella
2,0 Km
Bar Donnino
2,0 Km
Il Borgo Antico
2,5 Km
Mostra tutto

Caratteristiche

Rif.:
61170233
Piano:
Su più livelli di 2
Totale piani:
2
Box:
1
Posti auto:
3
Balconi:
1
Mostra tutto
Prezzo Prezzo
€ 280.000
Rata mutuo Rata mutuo
€ 1.330 / mese
Spese annue Spese annue
€ 0
Proponi il tuo prezzoProponi il tuo prezzo

Classe Energetica

G
G
G
G
G
G
G
G
G
EP globale non rinnovabile:
178.35 kW h/m² anno
EP globale rinnovabile:
178.35 kW h/m² anno
EP invernale del fabbricato:
EP estiva del fabbricato:
Anno di costruzione:
1960
Riscaldamento:
Autonomo
Tipo impianto:
A radiatori
Tipo alimentazione:
GPL

Ti interessa visionare l'immobile?

Fissa un appuntamento  Fissa un appuntamento

Richiedi informazioni

Clicca su Leggi per aprire l'informativa
* Questi campi sono obbligatori

Calcola il tuo mutuo

Semplice e senza impegno
Anticipo

( % )
Mutuo

( % )

pochi semplici passi

inserisci i tuoi dati
Questionario completato
Grazie per aver richiesto un appuntamento senza impegno con un nostro Consulente del Credito e Assicurativo.

Hai inserito correttamente tutti i dati necessari e a breve riceverai una e-mail con un link da convalidare per inviare i tuoi dati.
Affiliato
Studio Falisco Srl
Via Oreste Borghesi, 79 01027 Montefiascone (VT)

Il nostro staff


  • Roberto Chiodo
    Affiliato

  • Giulia Onofri
    Coordinatrice
Via Oreste Borghesi, 79 01027 Montefiascone (VT)
Zona: Montefiascone- Marta -Lago Di Bolsena
Mostra su mappa
Affiliato
Studio Falisco Srl
Via Oreste Borghesi, 79 01027 Montefiascone (VT)

2026 Tecnocasa Franchising S.p.A. - P. IVA 08365160152 - Via Monte Bianco 60/A 20089 Rozzano (MI). Ogni agenzia ha un proprio titolare ed è autonoma. Privacy policy | Policy utilizzo | Cookie policy